Sold

59 Ascot Way, Little Mountain

SOLD for $2,485,000

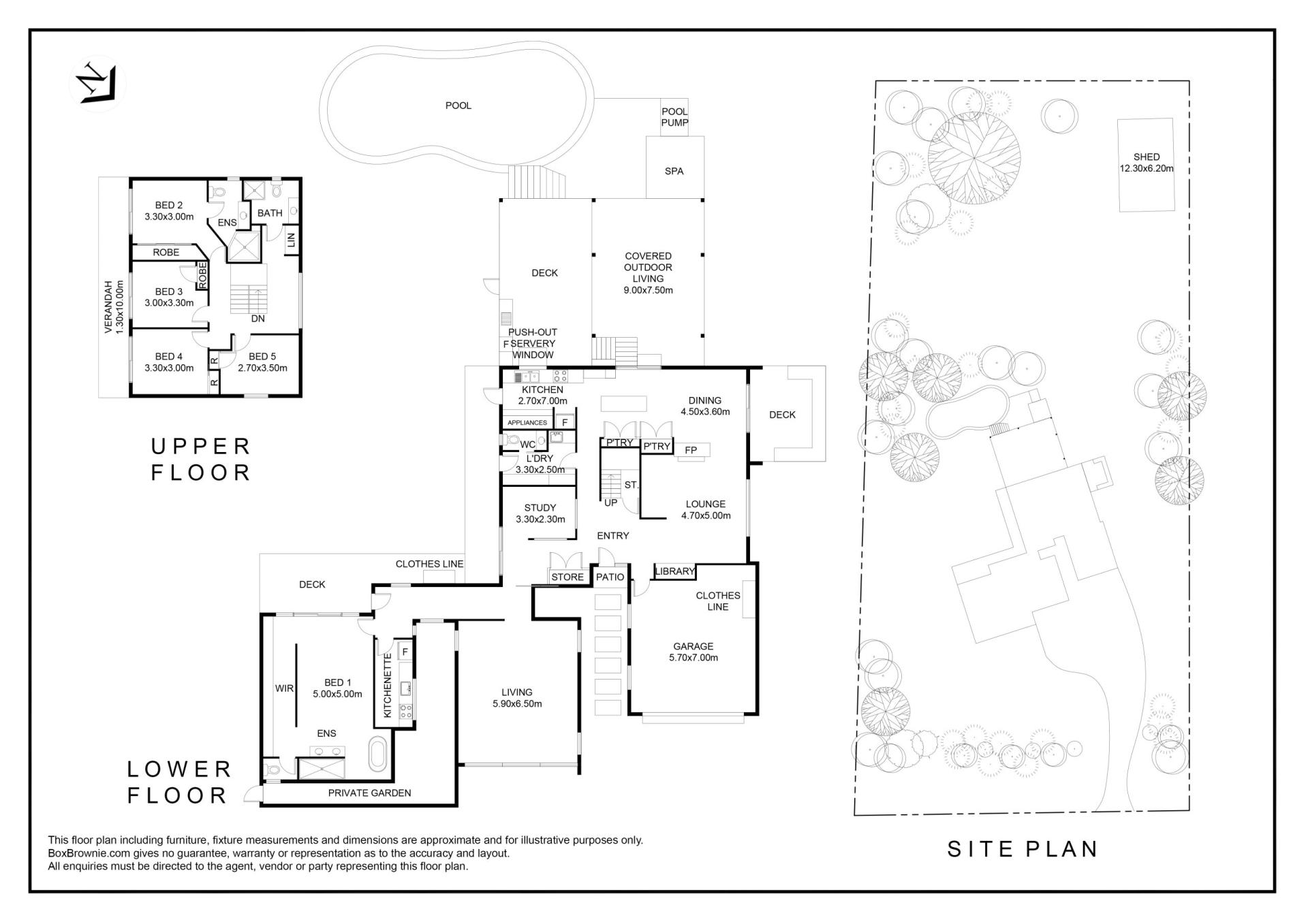
5 3 4 4,012 m2

INSPECTIONS WELCOMED – RESORT-STYLE FAMILY ACREAGE IN LITTLE MOUNTAIN’S PRESTIGIOUS RACECOURSE ESTATE

The phone enquiry code for this property is - 2243

A rare opportunity awaits to secure a truly remarkable lifestyle property in one of Little Mountain’s most sought-after acreage enclaves. Perfectly positioned in the serene Racecourse Estate, this 5-bedroom + study, 3.5-bathroom family retreat delivers the ideal blend of luxury, privacy and coastal convenience - just minutes from Caloundra’s town centre and world-class beaches.
Set on a mostly level 4012m² block, this home promises resort-style living with a seamless indoor–outdoor connection, designed for families who value both space and sophistication. All the hard work has been done.

PROPERTY HIGHLIGHTS
• 5 Bedrooms – 2 with Ensuites
Including a breathtaking master suite on the ground floor featuring soaring ceilings, a private tropical garden outlook, designer ensuite and expansive custom walk-in robe. Four additional freshly painted and carpeted bedrooms with built-ins occupy the upper level.
• Multiple Living Zones
Two generous downstairs living areas ensure everyone has their own space to relax and entertain.
• Designer Industrial-Themed Kitchen
A chef’s delight boasting stainless and stone benchtops, gas cooktop and electric oven, dishwasher, walk-in pantry and a servery window to the incredible poolside alfresco entertaining area — complete with inbuilt Weber BBQ and drinks fridge.

ADDITIONAL FEATURES
o Dedicated louvred home office or study
o Kitchenette adjacent to master suite – ideal for guests or multi-generational living
o Internal laundry and downstairs powder room
o Slow-combustion wood fireplace for cosy winter evenings
o 5 split-system air-conditioners + ceiling fans throughout
o Remote double garage with internal access and stunning new epoxy floor
o 11m x 5m tiled swimming pool and undercover spa for year-round enjoyment
o 20 solar panels with 5.0kW SolarEdge inverter
o 12m x 6m powered shed with remote door, workbenches and small mezzanine level – ideal for trades, storage or extra vehicles
o Fenced yard with generous side accesses
o Established low-maintenance gardens featuring tallowwood eucalypts, gums and mature fruit trees - mango, lychee, mulberry, lemon, lime, mandarin and orange
o Chicken house with fenced run
o Plenty of available land with the potential to add a second dwelling (STCA) and off-street parking for your family and friends
o Town water and sewerage
o Husqvarna ride-on mower included

LIFESTYLE AND LOCATION
Nestled within the peaceful, family-friendly Racecourse Estate, residents enjoy a relaxed semi-rural lifestyle just moments from urban conveniences.
Nearby Little Mountain Common offers an incredible array of facilities including:
• Children’s playground and cycle track
• Exercise equipment and skate park
• Basketball half-court
• Fully fenced off-leash dog park with agility course
A produce and landscaping business, GP clinic, hair salon, popular Indian and Mexican eateries, the Sunshine Coast Turf Club and Caloundra Pony Club are only minutes away, while the Bruce Highway, Sunshine Coast Health Precinct, Sunshine Coast Industrial Park and the location for the planned Caloundra TAFE Centre for Excellence Training Hub and Honey Farm Road Sport and Recreation Precinct are all easily accessible.

AN OPPORTUNITY NOT TO BE MISSED
With 2 stylish bathroom renovations freshly completed, this exceptional residence is now available. Some photographs may show the home furnished but the property is vacant, ready for you to bring your own style and vision.
Homes of this calibre in Little Mountain’s Racecourse Estate are tightly held — and demand in this market is fierce.
Contact the sellers today to arrange your introduction and experience the relaxed luxury of 59 Ascot Way, Little Mountain for yourself.

Details

Address 59 Ascot Way, Little Mountain
Price SOLD for $2,485,000
Property Type Residential
Property ID 1163
Category Acreage Semi-rural
Land Area 4,012 m2

Share

Sale By Home Owner photo

Sale By Home Owner

1300 841 864