Just Listed

15 Levant Street, Albany Creek

Offers over $1,000,000

3 1 2 607 m2

Inspect

Inspections

Saturday 15 November 2:30 PM - 4:00 PM

Sunset Views, Entertainer's Dream & Endless Possibility! Your Next Chapter Starts Here

The phone enquiry code for this property is - 2272

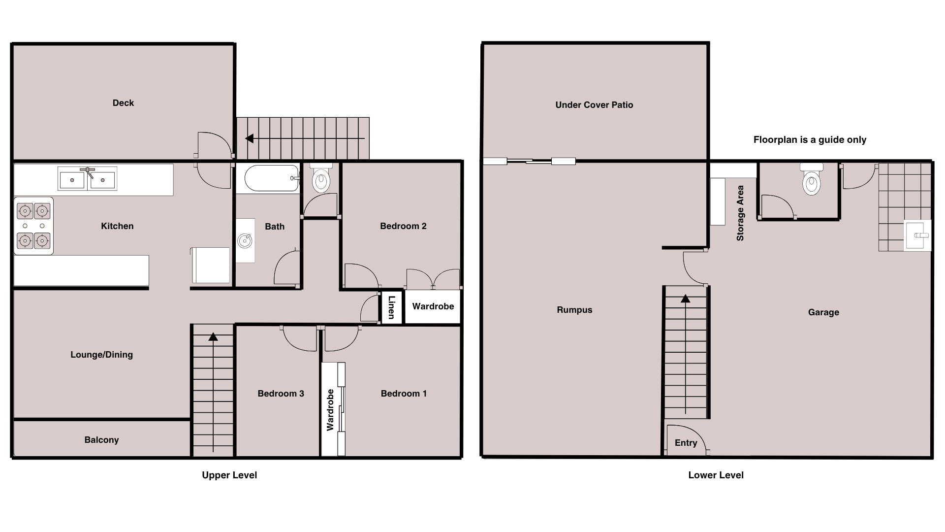
Discover this impeccably presented, family home that's move-in ready yet offers endless potential for your personal touch. Perched on a generous, level 607sqm block in an elevated position on a conveniently located street in Albany Creek, you'll savour stunning sunsets and invigorating afternoon breezes from this peaceful retreat.

Step inside to an inviting open-plan living and dining area, complete with air conditioning and gleaming polished timber floors that seamlessly extend to a spacious front verandah. The contemporary kitchen offers ample storage, expansive bench space, and stainless steel appliances that add a sleek modern touch to the kitchen. From here, embrace effortless indoor-outdoor living with access to a substantial timber deck, perfect for year-round al fresco dining, weekend barbecues, or simply unwinding with loved ones.

Also, on the upper level, three freshly carpeted bedrooms await, each equipped with ceiling fans and charming classic windows that infuse timeless character. The main bedroom enjoys its own air conditioning for ultimate comfort, while the stylish modern bathroom adds a touch of elegance to daily routines.

Venture downstairs to an expansive utility room versatile enough to serve as a man cave or home theatre, and still enough room for an office space plus a convenient second toilet, secure two-car garage, and a large covered entertaining area overlooking the expansive grassed backyard. This outdoor haven is a dream for children and pets to play freely or a blank canvas for your landscaping visions.

Additional standout features of this thoughtfully designed home include:

• Three air conditioning units for year-round comfort
• Convenient side access
• Insulated ceilings throughout
• Built-in safe for added security
• Fully compliant with 2022 Smoke Alarm legislation
• Hot water system less than 5 years old
• Oven replaced less than 3 years ago
• Prime location within walking distance to multiple schools, shopping precincts, eateries, and public transport

Properties in this sought-after Albany Creek pocket move quickly, so if you're an entertainer at heart, seeking a turnkey residence, or envisioning a canvas to craft your dream home, seize this opportunity and make it yours today!

Disclaimer: ‘Information contained on any marketing material, website or other portal should not be relied upon. You should make your own enquiries and seek your own independent advice with respect to any property advertised or the information about the property.’

Details

Address 15 Levant Street, Albany Creek
Price Offers over $1,000,000
Property Type Residential
Property ID 1195
Category House
Land Area 607 m2

Share

Sale By Home Owner photo

Sale By Home Owner

1300 841 864