Just Listed

4 Sorrel Place, Catalina

$925,000

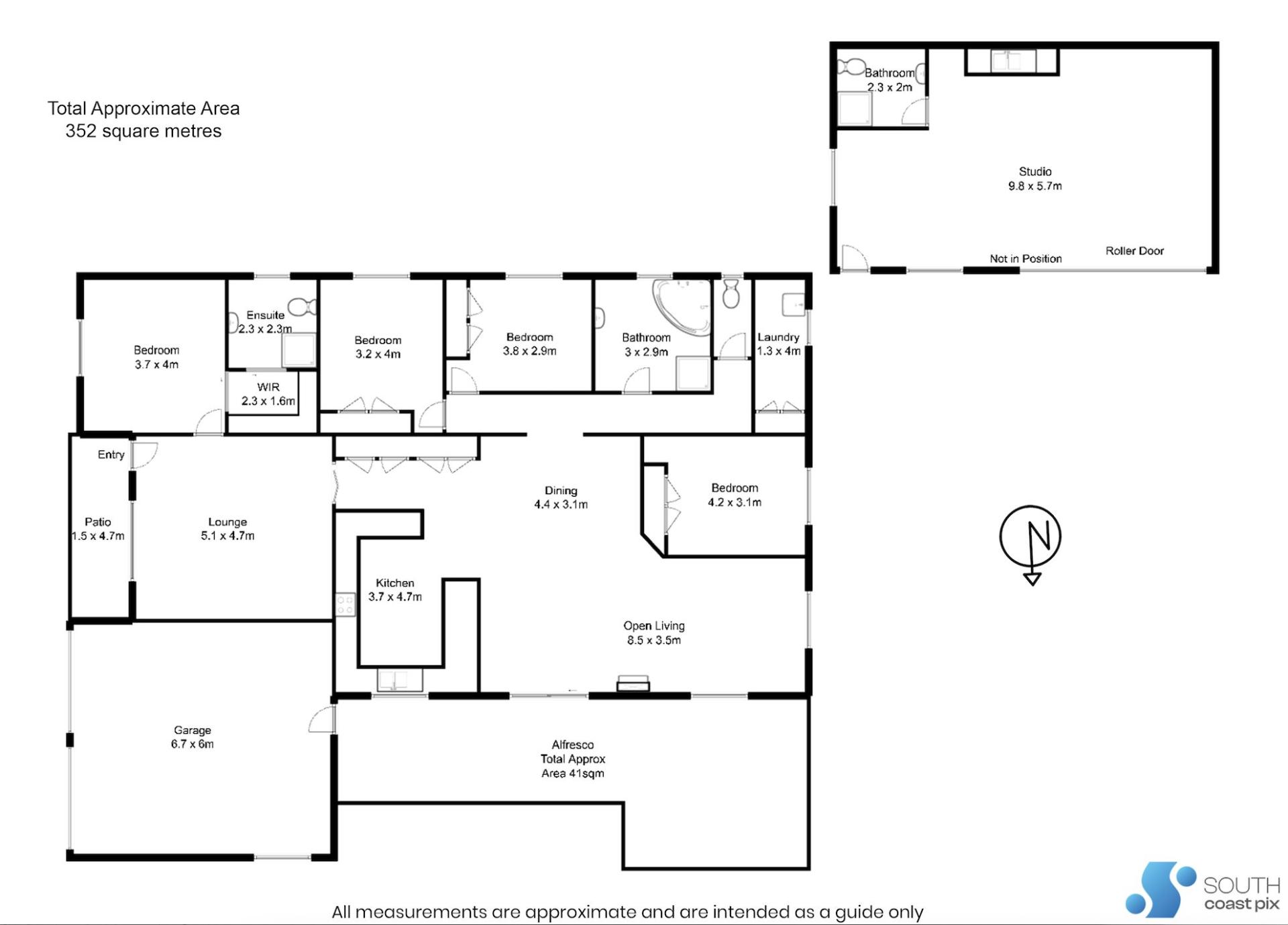
4 3 2 1,009 m2

SINGLE LEVEL QUALITY FAMILY HOME WITH LARGE STUDIO

• 4-bedrooms, 3-bathrooms, 2 car parking
• Located in quiet cul-de-sac
• Level Block
• Living room with fireplace and R/C air conditioning
• Front lounge has gas fittings for extra heating.
• Large kitchen with electric oven, gas cooktop and D/W
• Four bedrooms all with built-in robes
• Master bedroom has ceiling fan, ensuite and WIR.
• Main bathroom with spa and shower
• Well maintained garden
• Patio and pergola
• Double garage (6.7 X 6.0 metre) with remote roller doors giving secure parking and additional storage.
• Under cover from garage to house
• 7.3 KW solar system for energy efficiency and long-term savings
• Gas Cylinders
• Vast Satellite system
• 10m x 6m studio (brick and tile) with a bathroom, could be used as a study/rumpus room or extra accommodation.
• Garden shed ~3x4.3m
• Block size -1,009sqm
• Established fruit trees, mandarin, lime and orange, macadamia, avocado, pomegranate, walnut and almond and loganberry, blackberry and dragon fruit vines
• Double gate access to public reserve behind the property.
Location
• 10 m walk to Corrigans Beach
• Walk (15mins) or ride (5mins) Batehaven shops.
• High school, SDN Preschool & Muddy Puddles (5m walk)
• Cycleway nearby 20m ride to CBD
• Marine rescue public boat ramp and Catalina Golf Club (5 mins drive)

For enquiries please phone: 0432 093 117

Details

Address 4 Sorrel Place, Catalina
Price $925,000
Property Type Residential
Property ID 1199
Category House
Land Area 1,009 m2
Floor Area 352 m2

Share

Sale By Home Owner photo

Sale By Home Owner

1300 841 864